Terminalgebäude
München Pasing
Projekt
Abbruch und Neubau eines Terminalgebäudes am Pasinger Bahnhof Bauherr
Landeshauptstadt München
Landeshauptstadt München
Vertreten durch
Baureferat München
Baureferat München
General- und Objektplanung
Bohn Architekten
Leistungsphasen
1 bis 5 und künstlerische Oberleitung, HOAI
Elektroplanng
IB RiemhoferHaustechnikplanung
IB Többen
Verkehrssplanung:
IB Wittmann Verkehrssplanung:
Tragwerksplanung
ISP Scholz
SV Brandschutz
Architekturbüro A1
Fertigstellung
2012
Baukosten
10 Mio. Euro
Details
Hauptnutzfläche 803 m²Bruttogrundfläche 3.082 m²
Bruttorauminhalt 6.850 m³
Terminalgebäude
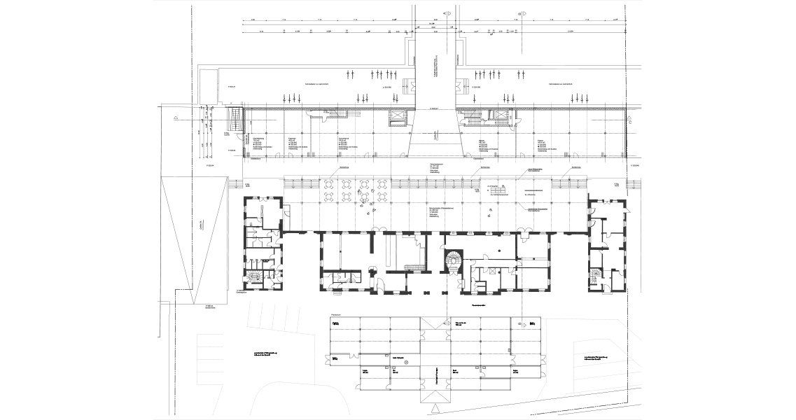
Zur Entlastung der Verkehrssituation im Zentrum Pasings baute die Landeshauptstadt München eine Umgehungsstraße nördlich des alten Bahnhofsgebäudes. Im Zuge dieser Maßnahme wurden die bestehenden Zugänge zu den Gleisen und die daran angrenzenden Ladenflächen abgebrochen und durch ein neues Zugangs- und Ladenbauwerk ersetzt. Das neue Terminalgebäude liegt parallel zum bestehenden, denkmalgeschützten Altbau und nimmt im Erdgeschoss die Läden, die Erschließung und Verteilung der Fußgänger zu den Bahnsteigen auf.
Im Obergeschoss erhält der Bahnhof, neben den Lagerflächen und der Anlieferung, einen direkten zentralen Zugang vom Straßenniveau im Norden. Das aufgesetzte Technikgeschoss betont die Mittelachse und ermöglicht durch seine transparente Fassadenausbildung in der oberen Bahnhofshalle die Durchsicht zum Altbau.
Die vorgeblendete Ziegelwand im Norden fasst Neu- und Altbau gestalterisch zusammen und lässt die Gebäudeteile zu dem einem neuen Bahnhof Pasing werden.
Fotos
© Jens Weber