P+R Anlage
München Messestadt Riem
Projekt
P+R Anlage
Bauherr
Landeshauptstadt München
Landeshauptstadt München
Vertreten durch
Maßnahmeträger München-
Maßnahmeträger München-
Riem GmbH (MRG)
Objektplanung
Bohn Architekten
Leistungsphasen
2 bis 7, HOAI
Bauleitung
ARGE RAL 6024, Bohn Architekten
und Egbert Ackermann
ARGE RAL 6024, Bohn Architekten
und Egbert Ackermann
Freianlagenplanung
realgrün Landschaftsarchitekten
Tragwerksplanung
Seeberger, Friedl & Partner
Elektroplanung
ERP Ingenieure
Haustechnikplanung
Dreyer & Jakob Ingenieure
Spezialtiefbauplanung
FKP Ingenieure
Visuelle Gestaltung
Projektgemeinschaft Schwaiger Winschermann mit Stauss & Pedrazzini
Wettbewerb
1998, 1.Preis
Fertigstellung
2002
Baukosten
18 Mio. Euro
Auszeichnungen
Renault Traffic AwardAnerkennung zum
Deutschen Architekturpreis 2003
DetailsAnzahl Stellplätze PKW 1.134
Anzahl Stellplätze Bus 15
Bruttogrundfläche 33.455 m²
Bruttorauminhalt 105.000 m³
P+R Anlage
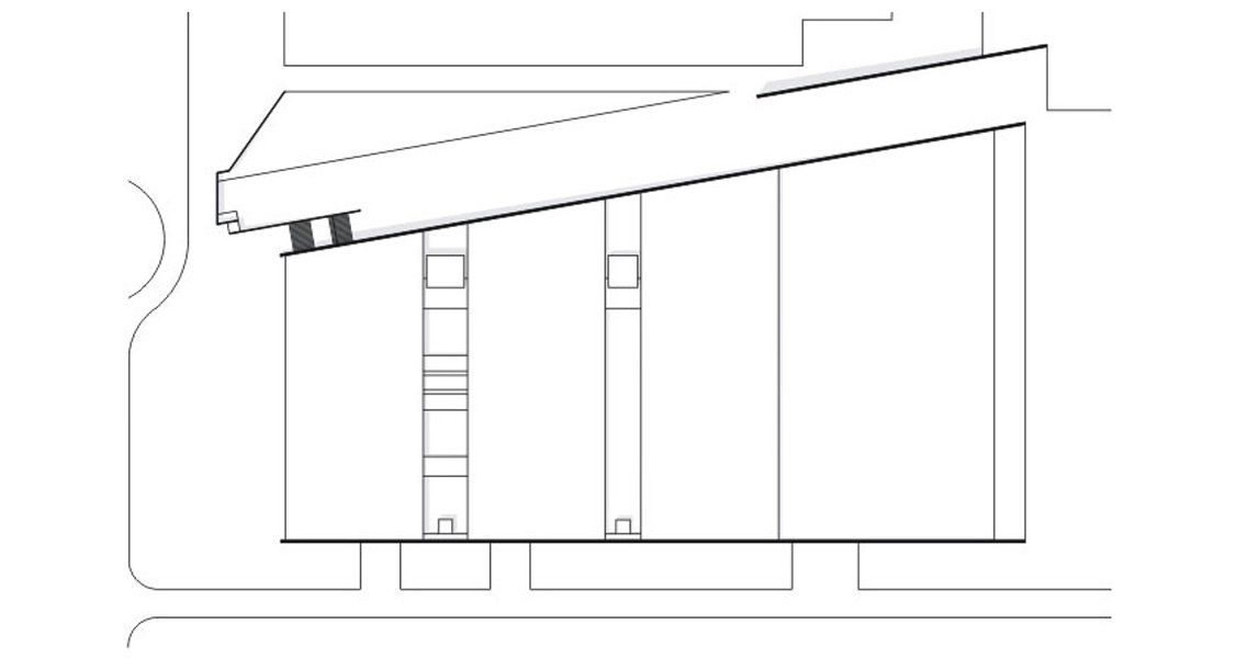
Das städtebauliche Konzept reagiert in besonderer Weise auf den Standort vor dem östlichen Messeeingang. Die harte Kante der Willy-Brandt-Allee wird in Fortsetzung der Messebauten bis an die Ecke der Alfons-Goppel-Straße geführt und fällt zum Eingang der Messe hin ab. Vom Messevorplatz aus ist nur ein großes, grünes Rasendach zu sehen.
Es wird an den Längsseiten von zwei dunklen Wänden aus Sichtbeton eingefasst, die als Keile nach Süden aufsteigen und erst an der Willy-Brandt-Allee als Raumwand wirksam werden. Dort zeigt eine gläserne Fassade den Zweck des Gebäudes.
Es wird an den Längsseiten von zwei dunklen Wänden aus Sichtbeton eingefasst, die als Keile nach Süden aufsteigen und erst an der Willy-Brandt-Allee als Raumwand wirksam werden. Dort zeigt eine gläserne Fassade den Zweck des Gebäudes.
Das eigentliche Parkhaus ist als dreischiffige Stahl- / Beton-Verbundkonstruktion unter das Dach, zwischen die Wandscheiben gestellt. Großzügige begrünte Lichthöfe belichten und belüften es auf natürliche Weise.
Der Busbahnhof im Norden der Anlage ist wie das Parkhaus durch die seitlichen Wände den Blicken der Passanten von außen entzogen. Unter dem ersten, niedrigsten Rasendach sind Warte- und Serviceeinrichtungen für die Reisenden untergebracht.
Fotos
© 2002 Stefan Müller-Naumann